Certified 4-Hour Fire Integrity – Built for Industrial Reliability

Gliderol® FRSC Fire Shutters are rated for up to 4 hours of fire containment and certified by UL, FM, TUV, and international standards. Ideal for warehouse, manufacturing, and service environments requiring reliable fire separation.

Exclusively distributed in Australia and New Zealand by Hold Fast Industries.

Specifications:

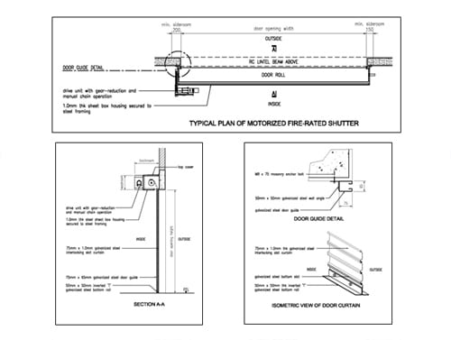
  • Galvanised interlocking steel slats (75mm x 1.0/1.2mm)
  • UL 10B, AS1530.4, NFPA 252, ASTM E2074 compliant
  • Maximum tested size: 12.0m wide x 7.0m high
  • Optional ceramic vision panels & bottom weather seals

Applications: Manufacturing zones, fire corridors, warehouse fire partitions

Learn More

Would you like to know more about Non-Insulated Fire Shutters – FRSC Series?

Then contact our friendly and experience team for advice on the ideal product for your needs.